


130 000 ₽/м²
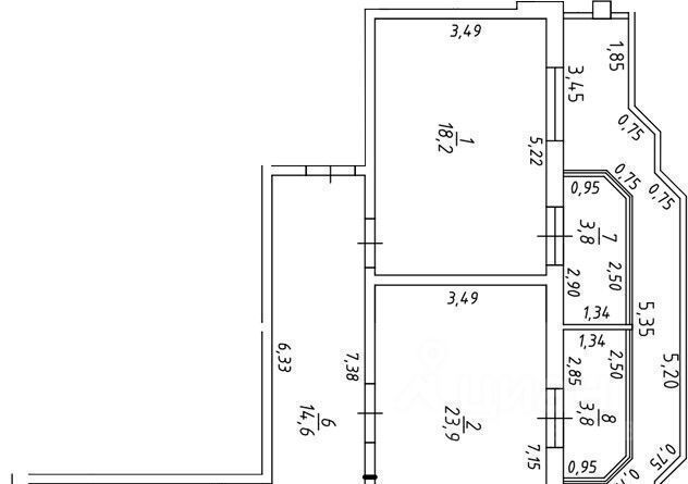
Объект 58074. В продаже просторная квартира 80 м кв + парковочное место в подарок Уникальная возможность стать обладателем уютной, стильной, комфортной и просторной 3-комнатной квартиры в новом жилом современном комплексе "Чёрное море" Анапское шоссе,30 , корпус 2! Позвольте себе жить рядом с красотами Черного моря, в уютном уголке тепла и комфорта. Квартира впечатляет своей планировкой и простором. Вас ждет довольно просторный коридор 13,7 кв.м с возможностью установить вместительный шкаф купе вдоль всего коридора, светлая и уютная кухня-гостиная 16,2 кв.м , а также удобные жилые комнаты 12,6 кв.м и 11,9 кв.м , 12,4м кв с противоположной стороны квартиры. Два санузла принесут дополнительный комфорт в вашу повседневную жизнь. Обременений нет! Жилой комплекс "Чёрное море" предлагает широкий спектр удобств и возможностей для вашего комфортного проживания. Здесь вы найдете двухуровневую подземную парковку, открытые и закрытые детские площадки, детский сад, мангальную зону, спортивные площадки и все необходимое для беззаботной жизни. Новая современная школа находится совсем рядом (10 минут пешком) по адресу: ул.Спортивная,35в , удобная автомобильная развязка обеспечит легкость передвижения. В шаговой доступности магазины, кафе,рестораны, парикмахерские и всё,что нужно для комфортной жизни. -- Гипермаркет "Магнит Экстра" Анапское шоссе,14 -- Городская детская больница Родниковая,4 -- Центр мебели и интерьера "Большой" Анапское шоссе,20 -- Караоке-ресторан "Мама,не горюй!" Анапское шоссе,9а -- Банкетный зал "Версаль" Анапское шоссе, 16б -- Детский сад "Жемчужинка" Анапское шоссе, 32 ( МАДОУ Детский сад 20 ) Помимо всего этого, уникальное местоположение комплекса порадует вас доступностью к морю. Центральный пляж всего в 25 минутах ходьбы, а пляжи Сукко и Б. Утриша — в 15 минутах на автомобиле. Не упустите возможность приобрести эту уникальную квартиру по доступной цене! Сделайте правильный выбор в пользу комфорта, красоты и уюта у Черного моря. Воплотите свою мечту о проживании в прекрасном месте, где каждый день наполнен новыми впечатлениями и радостями. ДОКУМЕНТЫ ПРОВЕРЕНЫ И ГОТОВЫ К ПРОДАЖЕ , ОБРЕМЕНЕНИЙ НЕТ! РЕАЛЬНОМУ ПОКУПАТЕЛЮ - ТОРГ! ВСЯ СУММА В ДОГОВОРЕ! А ЭТО ВАЖНО!




























































































