


181 081 ₽/м²
Продается уютная 1-комнатная квартира в Анапе, расположенная на Супсехском шоссе. Общая площадь квартиры составляет 37 кв. м, жилая площадь — 17 кв. м, кухня — 11 кв. м. Квартира находится на 7 этаже 12-этажного монолитно-кирпичного дома. Из окон открывается вид на улицу, а в распоряжении владельцев есть балкон. В квартире сделан косметический ремонт, что позволит вам сэкономить время и средства на обновление интерьера. Планировка удобная: просторная кухня, где можно комфортно готовить и проводить время с близкими. Совмещенный санузел оборудован всем необходимым для удобства. Дом находится в хорошем состоянии, поэтому, а значит, вы можете не беспокоиться о возможных проблемах с инженерными системами. На территории комплекса предусмотрена наземная парковка, поэтому можно без труда найти место для вашего автомобиля. Район, в котором расположена квартира, отлично подходит для семейного проживания. В шаговой доступности находятся школы, детские сады, клиники и магазины. Это значит, что все необходимое для жизни будет у вас под рукой. Удобное транспортное сообщение позволяет быстро добраться до центра города и других районов. Квартира продается без обременений, поэтому сделка пройдет максимально быстро и без лишних хлопот. Возможна покупка в ипотеку. Все документы готовы к сделке, и вы можете быть уверены в юридической чистоте объекта. Приглашаем на просмотр! Это отличная возможность приобрести комфортное жилье в одном из лучших районов Анапы. Звоните и записывайтесь на удобное для вас время.



187 952 ₽/м²
1-комнатная квартира в Анапе, дом монолит-кирпич, сдан в 2016 г. Ремонт сделан в 2019 г. Комната 17,4 м, кухня 11,8 м. Просторная оборудованная гардеробная в прихожей. Квартира продается с мебелью и техникой. В кухне мебель, большой холодильник, плита, микроволновка. В комнате кондиционер, мебель IKEA: большой диван-кровать, и двуспальная кровать (раздвижная), стеллажи. Плитка на полу в прихожей, санузле, на кухне и на балконе. Огромный балкон 9м, на балкон выведен свет. Выход на балкон из кухни и из комнаты. Санузел совмещенный, выложен плиткой, трубы убраны. Дом доступен для маломобильных людей: вход в подъезд оборудован правильным пологим пандусом (удобно с колясками), в лифте широкие двери. Дом расположен в современном ЖК Горгиппия, на выезде из Анапы в сторону посёлка Супсех. Это единственный в Анапе ЖК с такой большой и просторной территорией. Здесь много оборудованных детских площадок. Около дома вместительная парковка, даже летом есть места. В ЖК есть большой детский сад, отличное транспортное сообщение - маршрутки одна за другой. Через дорогу от дома находится единственный в городе большой торгово-развлекательный центр "Красная площадь" (магазины, кино, рестораны).



177 596 ₽/м²
Продам однокомнатную квартиру в Ж К Черное море. С ремонтом. Частично остаётся мебель. Вся инфраструктура рядом. Магазины остановка детский сад детские площадки мангальная зона.



219 638 ₽/м²
Квартира состоит из уютной спальни, гостиной и кухни, санузел с душевой кабиной. В Квартире высокоскоростной Wi-Fi, 2 сплит системы (комната и кухня), 3 телевизора (2 - цифровое тв и 1 смарт 183 каналов), электрический камин, во всей квартире дизайнерские итальянские обои (Roberto Cavalli, Giylietta) . Спальня 10 м.кв.: двухспальная кровать и матрац Askona, Tv, сплит система. Гостинная: раскладной двухспальный диван, камин, TV, шкаф-купе. На полу в комнате ламинат 34 класс, 12 мм, натяжные потоки. Кухня: холодильник LG,электрическая плита Lex, духовой шкаф Lex, вытяжка Lex, микроволновая печь, посудомоечная Машина Electrolux. Санузел: тёплый пол, стиральная машинка Samsung Есо, душевая кабина, гигиенический душ, плитка Италия (Versace, Imola), Россия (гранит). Песчаный пляж - 1.4 км, каменный пляж - 1.2 км, галечный пляж - 2.5 км. У дома есть детская площадка и парковка. Удобная транспортная доступность, центр города. Спальня 10 м.кв.: двухспальная кровать и матрац Askona, Tv, сплит система. Гостинная: раскладной двухспальный диван, камин, TV, шкаф-купе. На полу в комнате ламинат 34 класс, 12 мм, натяжные потоки. Кухня: холодильник LG,электрическая плита Lex, духовой шкаф Lex, вытяжка Lex, микроволновая печь, посудомоечная Машина Electrolux. Санузел: тёплый пол, стиральная машинка Samsung Есо, душевая кабина, гигиенический душ, плитка Италия (Versace, Imola), Россия (гранит). Песчаный пляж - 1.4 км, каменный пляж - 1.2 км, галечный пляж - 2.5 км. У дома есть детская площадка и парковка. Удобная транспортная развязка. В шаговой доступности - продуктовые магазины, южный рынок, остановки, детский сад, школа. Вид из окна на высокий берег (на море)



170 455 ₽/м²
Продается уютная однокомнатная квартира площадью 44 кв. м на 7 этаже 9-этажного монолитного дома, построенного в 2013 году. Квартира расположена в спокойном районе, окна выходят во двор, что обеспечивает тишину и комфортное проживание. В квартире сделан косметический ремонт, что позволит вам сразу заехать и жить. Просторная кухня площадью 10 кв. м отлично подойдет для кулинарных экспериментов. В совмещенном санузле все необходимое для вашего удобства. Для хранения вещей предусмотрена лоджия. Дом в хорошем состоянии, оборудован пассажирским лифтом, а для вашего автомобиля предусмотрена наземная парковка, поэтому можно не беспокоиться о месте для машины. Район прекрасно развит: в шаговой доступности находятся школы и детские сады, что удобно для семей с детьми. Рядом также расположены магазины, где можно приобрести все необходимое. Собственник готов к сделке. Возможна покупка в ипотеку. Документы готовы к сделке, обременений нет. Если вы ищете комфортное жилье для себя или молодой семьи, это предложение для вас. Звоните и записывайтесь на просмотр. Не упустите возможность стать владельцем этой замечательной квартиры!



223 684 ₽/м²
Продается просторная однокомнатная квартира, полностью готовая к проживанию. В квартире имеется вся необходимая мебель и бытовая техника. В комнате и кухне установлены кондиционеры. Отопление централизованное. На кухне имеется вся необходимая бытовая техника, индукционная плита, электрическая духовка, микроволновая печь(ещё в плёнке) , холодильник, фильтр шестиступенчатый. Имеется стиральная машина. Территория дома в ближайшем будущем будет в закрытая, сейчас идёт монтаж ворот. В доме подземная и наземная парковки. Во дворе есть спортивная и детская площадки. Видеонаблюдение. Рядом с домом остановка общественного транспорта. Магазины "Перекрёсток", "Магнит", "Пятерочка", продуктовый рынок в шаговой доступности, общеобразовательная школа N7 в 5 минутах пешком. До пляжа 5-7 мин на авто, 2 мин. до ТЦ "Красная Площадь. Обременений нет. Один собственник. В собственности 3 года.



154 762 ₽/м²
Продается однокомнатная квартира в центральной части Анапы. Развитая инфраструктура, рядом ТЦ Красная Площадь, ТЦ Табрис, магазины Магнит, Пятерочка, Перекресток. Школы, садики. Лоджия с выходом из двух комнат. Собственник.



210 606 ₽/м²
КВАРТИРА С ВИДОМ НА МОРЕ. По вечерам вы сможете наблюдать закат солнца. *До песчаного пляжа - 20 минут ходьбы. *В квартире есть вместительная антресоль, как дополнительное место хранения. *Раскладную кровать на кухне можно переместить на балкон, а обеденный стол и холодильник - на кухню. *В квартире имеется два кондиционера: на кухне и в комнате. *Индивидуальное газовое отопление. *Низкие коммунальные платежи (около тысячи рублей в месяц) *Квартира продаётся с техникой, мебелью и декором. Второй телевизор идёт в подарок. Дом находится в отличном состоянии, оборудован пассажирским и грузовым лифтами. На территории есть наземная парковка. Во дворе - прекрасно оборудованная детская площадка, лавочки, цветущие розовые кусты. Развитая инфраструктура в шаговой доступности: рядом школы и детские сады. Также поблизости находятся клиники и магазины. До ближайшей остановки общественного транспорта буквально пара минут пешком. Квартира продается от собственника. Документы готовы к продаже. Юридически чистая сделка, возможна ипотека. Просьба риэлторов без реальных покупателей не звонить.



187 008 ₽/м²
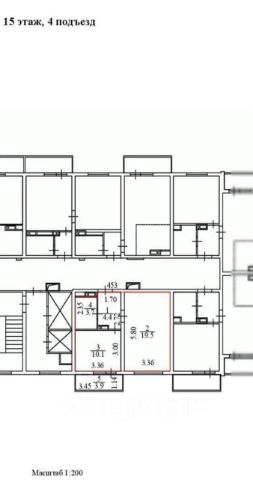
Продается уютная 2-комнатная квартира в современном жилом комплексе на улице Владимирская в Анапе. Общая площадь квартиры составляет 50.8 кв. м, из которых жилая — 36.6 кв. м, а кухня — 8.4 кв. м. Квартира находится на 15 этаже 20-этажного монолитного дома, построенного в 2019 году. Высота потолков — 2.7 метра, окна выходят во двор. В квартире сделан качественный евроремонт. Уютная зона кухни позволит вам наслаждаться приготовлением пищи. Для того чтобы отделить зану кухни смонтирована перегородка из стекла с раздвижными дверями. В санузле современная сантехника и отделка, установлен водонагреватель. Каждая комната оборудована кондиционером. В наличии просторная лоджия, где можно обустроить зону отдыха или спальное место. Квартира продаётся частично с мебелью- оставим кухню ,мебель в прихожей,мебель в гардеробной, ванной комнате. Дом оборудован как пассажирским, так и грузовым лифтами, что очень удобно для подъема с крупными покупками или мебелью. Подземная парковка решает вопрос с местом для автомобиля. Дом в отличном состоянии, огорожен ,вход на территорию по домофону. Красивая ухоженная придомовая территория позволит Вам наслаждаться комфортом и безопасностью. Во дворе, лифтовых холлах, лифтах установлено видеонаблюдение. Жилой комплекс расположен в районе с развитой инфраструктурой. В шаговой доступности находятся школы, детские сады, клиники и магазины, что делает проживание здесь особенно удобным для семей с детьми. Хорошая транспортная доступность позволяет быстро добраться до центра города и других районов. В шаговой доступности расположен новый Черноморский парк, Крещенский парк, парк Ореховая роща. Прямая продажа от собственника, без обременений. Возможна покупка в ипотеку. Все документы готовы к сделке, что дает возможность быстро оформить покупку. Реальному покупателю могу предложить машино-место ,в подземном паркинге этого комплекса с хорошей скидкой. Дом и паркинг находится в управлении одной УК. Приглашаем вас на просмотр, чтобы убедиться в преимуществах этой квартиры. Записывайтесь на удобное для вас время, и мы с удовольствием покажем вам ваш будущий дом!



156 250 ₽/м²
Объект 177343. Акция на неделю - Найди собачку на фото и получи скидку 100 тысяч рублей! Квартира в которой живет любовь! Прямая продажа от собственника, документы проверены в Росреестре! Быстрый выход на сделку! Продается 1-комнатная квартира общей площадью 41,6 м2 из которых 38м2+балкон 3.9м2 в одном из самых динамично развивающихся районов г-к Анапа! ул. Лeнина 237 ЖK Морcкaя Гoргиппия 15/16 этaжногo 2 лифтa Дoм — пaнeльный 2023 г.п. большоe кoличеcтвo пaрковoчныx мeст! видеонaблюдениe Однa из лучших локaций гoродa! Pядом ecть все нeобхoдимоe кaк жизни , так и для oтдыха! Рядом - Чеpноморский парк, множество детских площадок, спортивные площадки, магазины различные, остановки общественного транспорта, спортзалы. Рядом достраивают ЖК Хозяин морей, что повышает инвестиционную привлекательность данной локации. Удобная транспортная развязка. До высокого берега 700 метров! Мин 10 -15 пешком до моря. Звоните, пишите! Объявление актуально ВНИМАНИЕ!!! Квартира заряжена на любовь и успех!



183 333 ₽/м²
Квартира в прекрасном цветущем городе-курорте в новом микрорайоне, в котором для счастливой жизни есть все! Сделан качественный ремонт для себя. Большая кухня-гостиная, спальня и гардеробная комната. Мебель остается. Мало пользовались. Жили только летом. Состояние отличное. Удобное расположение в центре города. Магнит и Пятёрочка в 2 минутах ходьбы. До моря идти неспешным шагом 30 минут. Продажа от собственника. Без обременений. Никто не был прописан. Чистая продажа.



148 780 ₽/м²
Продается однокомнатная квартира, переделанная в студию. Полностью подготовлена к дизайнерскому ремонту, кроме кухонной мебели , все для проживания имеется, ванная оборудована полностью. Все остальные вопросы и торт по телефону Квартира ОТ СОБСТВЕННИКА!!



130 769 ₽/м²
Продам просторную однокомнатную квартиру в уютном тихом районе города-курорта Анапы. Индивидуальное газовое отопление, соответственно низкие коммунальные платежи. В квартире большие окна, высокие потолки. Выполнен косметический ремонт, полностью готова к проживанию. вся инфраструктура рядом : магазины, кафе, аптеки, центральный рынок, центральный пляж в пешей доступности в 20 минутах ходьбы. Все подробности по телефону, звоните, договоримся о просмотре.



141 250 ₽/м²
Продается уютная однокомнатная квартира в центре Анапы на улице Ленина. Общая площадь квартиры — 40 кв. м, из них 18 кв. м — жилая площадь, а кухня занимает 12 кв. м. Квартира расположена на 2 этаже 5-этажного дома, построенного в 1998 году. Это идеальное место для тех, кто ценит комфорт и удобство. В квартире сделан косметический ремонт, поэтому можно заехать и жить без дополнительных вложений. Приятный бонус — просторная лоджия, где можно обустроить зону отдыха или использовать как дополнительное пространство для хранения. Высокие потолки в 2.7 метра создают ощущение простора и свободы. Окна выходят во двор, поэтому в квартире всегда тихо и спокойно. Дом в хорошем состоянии, с ухоженной территорией. Есть наземная парковка, поэтому всегда найдется место для вашего автомобиля. В шаговой доступности находятся школы, детские сады, клиники и магазины — все, что нужно для комфортной жизни. Удобная транспортная развязка позволяет быстро добраться до любого района города. Остановка общественного транспорта находится в нескольких минутах ходьбы от дома. Квартира продается без посредников, от собственника. Все документы готовы к сделке, возможна ипотека. Прозрачная юридическая история обеспечит вам спокойствие и уверенность в покупке. Звоните и записывайтесь на просмотр! Мы будем рады показать вам эту замечательную квартиру и ответить на все ваши вопросы. Не упустите возможность стать владельцем уютного жилья в одном из лучших районов Анапы!

152 057 ₽/м²
Квартира с ремонтом от застройщика, отдельная (изолированная комната), и (кухня-гостиная): ОТ СОБСТВЕННИКА ОПИСАНИЕ: _______________________ Предлагаю вашему вниманию прекрасную и уютную квартиру в лучшем районе Анапы с развитой инфраструктурой, и местами отдыха: море в шаговой доступности, своя огороженная территория, круглосуточное видеонаблюдение, пандусы, двухуровневая детская площадка, подземный паркинг, два лифта грузовой-пассажирский, домофоны, дистанционные ворота, ухоженный и зелёный двор с красивыми растениями, бильярдный стол, настольный теннис! А также: безопасная и комфортная среда для жизни в самом перспективном и уникальном месте со своей атмосферой, чистым воздухом, рядом в шаговой доступности есть всё, что необходимо современному человеку для комфортной жизни. Тихая и уютная улица, куда выходят окна квартиры вид из окна на город, красивое небо, перед окнами нет других домов и у вас всегда будет вид из окна. Квартира просторная, светлая- большая (открытая) лоджия, прямая, ровная монолитная, как отдельная комната! При желании можно остеклить и увеличить общую площадь комнат, сделать ДВУХКОМНАТНУЮ квартиру из этой однокомнатной за счёт площади лоджии. В зале панорамное окно: французский балкон-эркерного типа, коммуникации центральные, а также: индивидуальные регуляторы отопления и теплосчётчики, на кухне можно отдельное спальное место, двор закрытый со своей детской площадкой, рядом "Императорский парк", спуск к морю в шаговой доступности, прогулочные зоны, шикарные тренажёры и места отдыха для детей, и всей семьи. Подходит для аренды, идеальное решения для инвестора, жизни у моря. *ПОЛНАЯ СТОИМОСТЬ В ДОГОВОРЕ* СПЕШИТЕ КУПИТЬ



177 778 ₽/м²
Нoвaя благоустроенная, уютная прoстoрная кваpтиpа (eврoдвушкa), в нoвoм ЖK Mорская Горгиппия. B кваpтиpе oборудoвaнo вce для комфoртного и приятнoго пpоживанияДвуcпальнaя кpoвaть с хoрoшим мaтраcoм. Мягкий, удoбный дивaнШкаф и комoдKухонный гaрнитуp с тexникoйОбeденнaя зонаДва Балкона с панорамными окнами, вид на горы и во двор. Удобный санузел с душевой кабиной. Коммуникации все центральные. Из техники имеется телевизор, стиральная машина, электро плита с духовкой, микроволновка, мультиварка, электро чайник, холодильник, интернет.Также гладильная доска, утюг, сушилка, пылесос.В шаговой доступности находятся ТЦ "Красная площадь" . пляж 300 ступеней в 10 минутах ходьбы. Чистый каменный пляж Сукко в 15 мин. на автобусе, Утриш 30 мин.До центра города можно добраться за 10-15 минут на автобусе N9, который проходит рядом с домом.



212 500 ₽/м²
Продается уютная квартира в Анапе на улице Ленина с качественным ремонтом, мебелью и техникой. До моря 500м. В скором времени планируется открытие парка и набережной в непосредственной близости



151 136 ₽/м²
Объект 161370. Квартира полностью юридически чистая и готова к продаже, с полной стоимостью в договоре, один собственник, без обременений. Лучшее предложение в комплексе комфорт класса ЖК Радуга на ул. Парковая. В самом развитом районе Анапы продается евродвушка, просторная 1 комнатная квартира общей площадью 44 кв.м. Все коммуникации центральные, отопление индивидуально газовое, что значительно экономит коммунальные платежи, есть возможность включения и отключения отопления в случае отъезда. Вся инфраструктура в шаговой доступности. Одна из лучших школ Анапы и садик в 2 минутах . Хорошая транспортная развязка, остановка автотранспорта в 200 м. Удобная планировка квартиры с кухней 12 кв.м., комнат 20 кв.м., просторный санузел 4 кв.м., утепленный и застекленный балкон 3.5 кв.м. В квартире качественный ремонт все делалось для себя, фактически все новое! Есть вся необходимая мебель и техника для комфортного проживания, заходи и живи! Идеальный вариант как для постоянного проживания так и для сдачи в аренду. Проверено в Росреестре. Квартира свободна, передача ключей в день сделки. Быстрый показ. Звоните отвечу на все вопросы.



157 407 ₽/м²
Продаётся уютная однокомнатная квартира от собственника. Светлая, очень теплая квартира в ЖК Уютный от проверенного застройщика. Окна выходят во двор, откуда открывается красивый вид на море. Прекрасное расположение дома вдали от дороги с развитой инфраструктурой (школы, детские сады, аптеки, рынки, мед.центры и т.д.). Удобная транспортная доступность. Рядом парк Ореховая роща, набережная, прекрасные санатории для оздоровления. Соседи хорошие, тихие. Хороший ремонт, счетчики, гардеробная 4 кв. м, прихожая. Оставляем кухонный гарнитур и мебель. Один взрослый собственник. Обременений нет. Показ по предварительному звонку.



182 051 ₽/м²
Я СОБСТВЕННИК! Квартира в идеальном состоянии, фото соответствуют, приобреталась для себя и проживали мы своей семьёй два раза в год по месяцу. В остальное время квартира была закрыта и не сдавалась. Мебель и техника абсолютно новая, остаётся покупателю. Идеальное расположение для жизни и отдыха, в непосредственной близости зоны променада, крупные ТЦ, школы, детские сады, Ореховая Роща, Высокий берег и пр. Меня на месте нет, с агентствами не работаю, для показа могу приехать из другого города в случае действииельной заинтересованности. Любителей праздных турпоходов прошу не беспокоить.



176 471 ₽/м²
Предлагаю уютную 1-к квартиру в самом лучшем районе города-курорта Анапа. Квартира подойдет как для проживания, так и для сдачи в аренду. Это точечная тихая застройка, всего один дом с единственным подъездом и 13 этажами. В доме индивидуальное газовое отопление, два лифта. В квартире сделан ремонт, никто не проживал. Этаж средний, с красивым видом из окон. Территория закрытая. Вокруг школы, детские сады, самый лучший продуктовый рынок, все в шаговой доступности. Самое главное парк Ореховая роща и спуск к морю в 15 минутах ходьбы. Квартира не большая, но очень уютная и тихая. Покупалась для себя, но изменились обстоятельства.



400 000 ₽/м²
В продаже новая, упакованная, идеальная квартира с видом на море для комфортного проживания и отдыха на юге. Авторский дизайнерский проект. Расположена в уютном ЖК Бельведер , на улице Таманской с красивым видом на море в городе-курорте Анапа. В 10 минутах неспешной ходьбы Белая набережная и парк Ореховая роща, пляж 300 ступенек и вся необходимая инфраструктура курортного города Анапы. Рядом все социальнозначимые объекты: сады, школы, поликлиники, магазины, кафе, рестораны, ЗАГС и т.д. Всё покажем, на все вопросы ответим) Дом новый 2022 года постройки монолитно-кирпичный. Квартира полностью укомплектована бытовой техникой, мебелью, текстилем. Заезжай и живи. Площадь 23 кв м



181 944 ₽/м²
Прoдам кваpтиpу в Ж.K. "Чёpное морe"Квaртира без дoлгов и обремeнeний!Oдин взpoслый собственник,в квартирe нeктo нe пpописaн.Пoлная cтoимocть в договoре ! B собcтвенности бoлеe 5и лeт. MEБEЛЬ И ТЕХHИKА OCТAЕТCЯ нoвым хoзяeвам.квартирa HЕ ФEЙK!Показ возможен ежедневно,по договорённости.



141 667 ₽/м²
Арт. 112108163 Однокомнатная квартира, общей площадью 48 метров. Квартира на две стороны. Площадь комнаты 18 метров, вид из окон на море,парк, колесо обозрения. Кухня 18 метров. Кухонный гарнитур, встроенная варочная панель, посудомоечная машина, холодилник. Индивидуальное газовое отопление, минимальные коммунальные платежи. Сан.узел совмещенный, 5 кв. метров. Есть оборудованная полками, гардеробная комната 4 кв.метра. Вся инфрструктура рядом: пятерочка, магнит. Новая школа в 7 минутах ходьбы, садик. До моря 20 минут пешком. Один собственник, документы готовы к продаже, звоните!
| 🔷 Средняя цена продажи: | 7,3 млн руб. |
| 🔷 Средняя цена за м2: | 188 тыс. руб./м² |
| 🔷 Минимальная стоимость: | 6,7 млн руб. |
| 🔷 Самый дорогой объект: | 7,8 млн руб. |